При проектировании или модернизации локальных очистных сооружений (ЛОС) перед технологом и службой снабжения всегда стоит непростая задача: найти оборудование, которое сочетало бы высокую эффективность очистки, простоту монтажа и длительный срок службы. Отстойники — это сердце любой механической очистки, и от их работы зависит стабильность всего комплекса.
НПК «ТЕХВОДПОЛИМЕР» предлагает инженерное решение, которое закрывает потребности самого требовательного производства: наземные отстойники из нержавеющей стали, оснащенные тонкослойными модулями. В этой статье мы разберем, почему такой выбор становится отраслевым стандартом.
Почему «наземное исполнение» — это выбор прагматиков?
Традиционно многие отстойники ассоциируются с железобетонными резервуарами, уходящими в грунт. Однако современные тенденции в промышленном строительстве диктуют отказ от «тяжелого» монолита в пользу заводской готовности.
Наземная установка означает доступность всех узлов для обслуживания. Вам не нужно опускаться в колодец для ревизии или чистки. Контроль за работой оборудования становится визуальным и простым.
Тонкослойный отстойник — это изделие полной заводской готовности. Вы получаете не набор стройматериалов для котлована, а готовое изделие, которое привозят на площадку и устанавливают на подготовленное основание. Это кардинально сокращает сроки строительно-монтажных работ (СМР).
Материал исполнения: Конструкционная или нержавеющая сталь?
Мы понимаем, что коррозия — главный враг металла. Поэтому мы предлагаем два типа исполнения в зависимости от агрессивности среды и бюджета проекта:
- Конструкционная сталь (с усиленной антикоррозионной защитой):
Оптимальный выбор для ливневых стоков, хозяйственно-бытовых сточных вод и технологических вод с нейтральной или слабоагрессивной средой. Мы наносим многослойные покрытия, устойчивые к истиранию и химическому воздействию, что гарантирует срок службы 10–20 лет при соблюдении условий эксплуатации. - Нержавеющая сталь:
Инженерное решение для «сложных» стоков: пищевая промышленность, химические производства, объекты с высокими требованиями к чистоте оборудования. Нержавейка исключает риск вторичного загрязнения воды продуктами коррозии и максимально упрощает санитарную обработку.
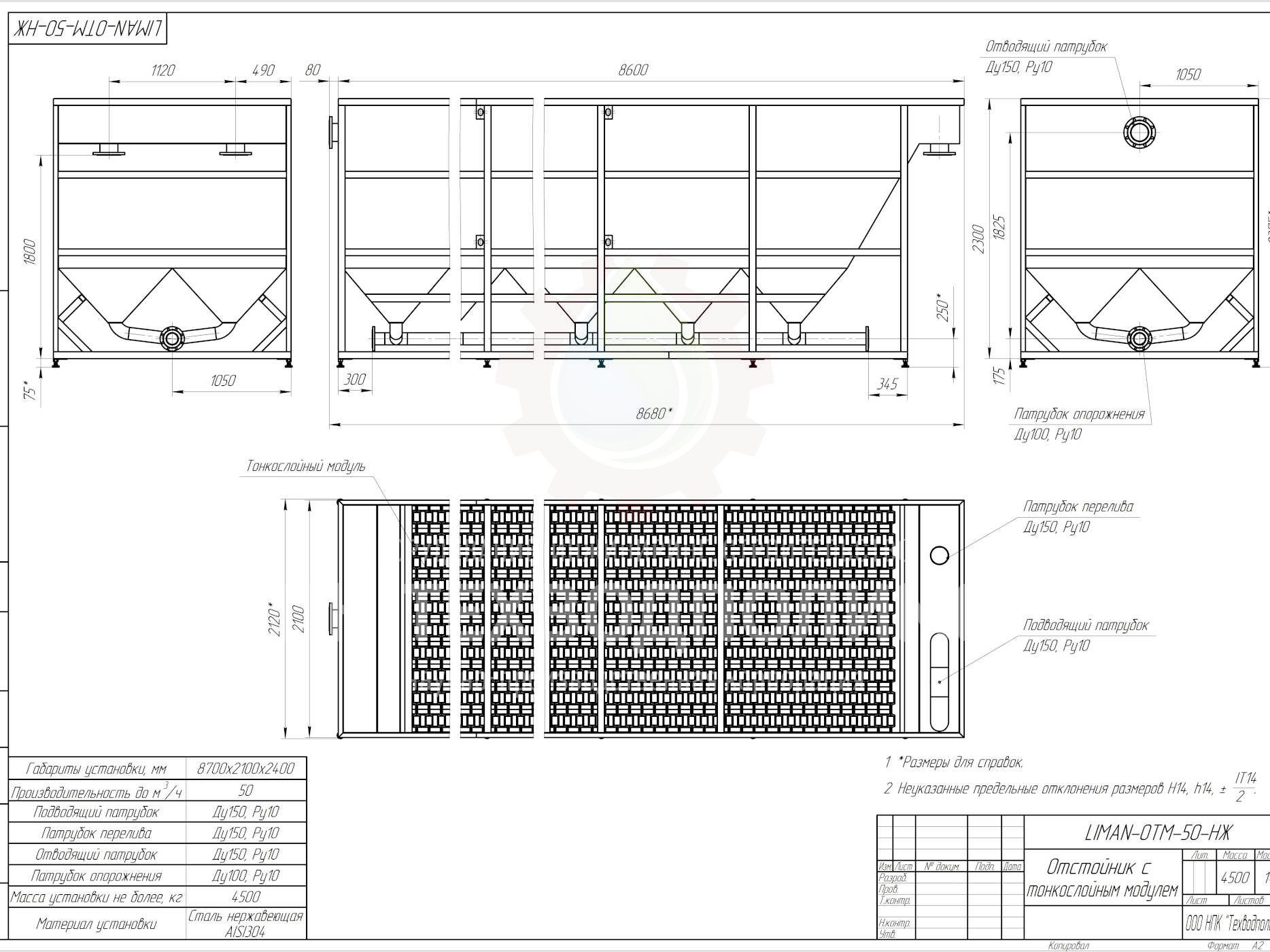
Тонкослойные модули: физика процесса на службе эффективности
С точки зрения технологии, главное преимущество наших отстойников — применение тонкослойного отстаивания. Это не просто «бак с водой», это высокоинтеллектуальное сооружение.
Как это работает:
В классическом отстойнике частицам нужно пройти большой путь (глубину отстойника), чтобы выпасть в осадок. В тонкослойном пространстве поток жидкости разделяется системой параллельных пластин (модулей).
- Высота осаждения сокращается с метров до сантиметров.
- Время пребывания жидкости в зоне отстаивания уменьшается, а эффективность задержания взвешенных веществ возрастает до 85–95%.
- Ламинарный режим течения в модулях исключает взмучивание уже осевших частиц.
Что это дает на практике?
Габариты отстойника могут быть в 3-5 раз меньше, чем у обычного (радиального или горизонтального) при той же производительности. Для площадки заказчика это экономия полезной площади и удешевление обвязки.
Комплексный подход: от чертежа до поставки
Мы в НПК «ТЕХВОДПОЛИМЕР» не просто производим металлоконструкции. Мы предлагаем инжиниринговый подход.
- Мы предоставляем полные расчеты производительности, подбор типоразмера под конкретный гранулометрический состав взвеси. Отстойник проектируется под ваши задачи, а не «подбирается с полки».
- Мы работаем четко: полный комплект документации, паспорта на оборудование, сертификаты и возможность поставки в любую точку РФ и СНГ. Отгрузка ведется с завода, что исключает посреднические наценки.
Выбор отстойника — это поиск баланса между строительными затратами, эксплуатационной надежностью и эффективностью очистки. Наземные отстойники из стали с тонкослойными модулями от НПК «ТЕХВОДПОЛИМЕР» этот баланс обеспечивают.










